產品關鍵字:截止閥,襯膠截止閥,直流式截止閥,直流式襯膠截止閥
襯膠截止閥主要分為直通式、直流式和直角式的三種。襯膠截止閥用于控制一般腐蝕性介質,閥體內腔表面覆有可供選擇的各種橡膠,適用于不同工作溫度和流體管中,具有強度高、耐腐蝕性好的特點。
壓力等級:PN 0.6 1.0 1.6
適用溫度:≤85℃ ≤100℃ ≤120℃(按照襯里材料)
設計與制造:GB/12235
結構長度:GB/12221(1系列)
法蘭連接尺寸按:GB4126、JB78
試驗、檢驗:GB/T13927
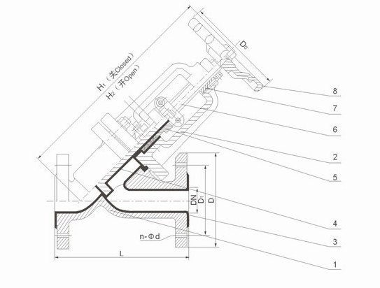
| 零件名稱 | 材 料 |
| 閥體 | 鑄鐵、鑄鋼 |
| 閥蓋 |
鑄鐵、鑄鋼 |
| 閥 瓣 |
鑄鋼、不銹鋼(完全包覆橡膠) |
| 閥 桿 |
鑄鋼、不銹鋼(完全包覆橡膠) |
| 襯里 | 橡膠 |
| 手 輪 | 鑄鐵、碳鋼 |
為保證管路介質絕對不與閥門殼體材料直接接觸,J45J襯里直流截止閥中閥體,閥蓋,閥瓣等內件均設計成襯里部件;閥座采用整體式聚合物作密封材料,在較寬的溫度和壓力范圍內具有優良的密封性能;閥門選材廣泛,規格齊全,是石油勘探 , 石化,化工,原油和天然氣等輸送管道的理想用閥。 適用介質:硫酸,氫氟酸,磷酸,氯氣,強堿等具有強腐蝕性的介質。
中國.上玉集團有限公司是專業生產襯膠閥門的廠家,直流式襯膠截止閥訂貨須知:
一、①直流式襯膠截止閥產品名稱與型號②直流式襯膠截止閥口徑③直流式襯膠截止閥是否帶附件以便我們的為您正確選型。
二、若已經由設計單位選定的直流式襯膠截止閥型號,請按直流式襯膠截止閥型號直接向我公司銷售部訂購。
三、當使用的場合非常重要或環境比較復雜時,請您盡量提供設計圖紙和詳細參數,由我們上玉集團的專家為您審核把關。
感謝您訪問上玉集團公司網站,如有任何疑問您可以撥打我們的全國熱線電話:400-887-6587,我們一定會盡心盡力為您提供優質的服務。

|
型號 |
公稱通徑DN(mm) |
尺寸(mm) |
質量(kg) | |||||||
|
L |
D |
D1 |
D |
H1 |
b |
Do |
n-d | |||
|
|
25 |
160 |
100 |
75 |
60 |
205 |
16 |
120 |
4-12 |
|
|
|
32 |
200 |
120 |
90 |
70 |
- |
16 |
160 |
4-14 |
|
|
|
40 |
|
130 |
100 |
80 |
250 |
16 |
160 |
4-14 |
|
|
|
50 |
230 |
140 |
110 |
90 |
290 |
16 |
160 |
4-14 |
|
|
|
65 |
290 |
160 |
130 |
100 |
310 |
16 |
180 |
4-14 |
|
|
|
80 |
310 |
190 |
150 |
125 |
358 |
18 |
200 |
4-18 |
|
|
|
100 |
|
210 |
170 |
145 |
428 |
18 |
200 |
4-18 |
|
|
|
125 |
400 |
240 |
200 |
175 |
510 |
20 |
280 |
8-18 |
|
|
|
150 |
480 |
265 |
225 |
200 |
550 |
20 |
280 |
8-18 |
|
|
|
200 |
600 |
30 |
280 |
255 |
635 |
22 |
400 |
8-18 |
|
|
|
250 |
730 |
375 |
335 |
312 |
|
24 |
|
12-18 |
|
2022-11-7
襯氟閥門和襯膠閥門有哪些區別(都是什么材質的)2012-3-21
上玉襯膠閥門襯氟閥門-三十年的發展與輝煌2012-3-19
襯膠閥門與襯氟閥門的選型與訂購時的注意事項2012-3-8
襯膠閥門中襯膠隔膜閥的日常保養維護及維修的注意事項2012-2-28
襯膠閥門與襯氟閥門的市場現狀分析2012-2-21
襯膠閥門的主要襯里材料2012-2-15
上玉集團襯膠閥門、襯氟閥門(隔膜閥)產品2012-1-3
襯膠閥門與襯氟閥門的區別